PARK-SIDE OFFICES

Projekt
Park-Side Offices Irodaház
Tervtípus
Építési engedélyezési terv - International Property Award 2022 Best office development
Év
2021-2022
Területnagyság
12 812 m²
Megbízó
Horizon2 Ingatlanfejlesztő Befektetési Alap
Generáltervező
DVM Group Kft.
© Korzó Tervezési Stúdió: Grabner Balázs – Terhes Dénes
 

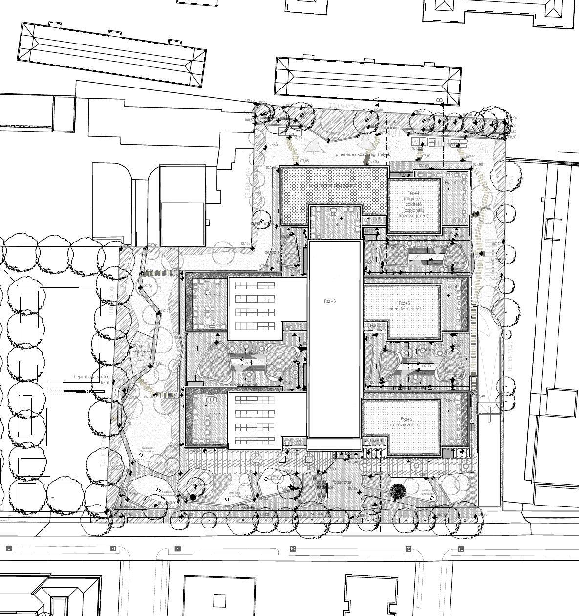
Koncepció

A cél egy olyan átgondolt és egységes koncepció kialakítása volt, amely egyszerre reflektál a meglévő funkciókra és biztosít helyet új, a kert használatát gazdagító elemek számára. A terv a megrendelői igényekre reagálva olyan tereket hoz létre, ahol a kertben való tartózkodás valóban élvezhetővé válik, és a látogatók különböző módon kapcsolódhatnak a térhez.

Az irodakert számos kikapcsolódási lehetőséget kínál: kültéri fitneszbútorok, asztalitenisz, valamint több pihenőhely kültéri bútorokkal felszerelve biztosítja a komfortos tartózkodást. A kertet átszelő, dinamikus vonalvezetésű úthálózat minden részt könnyen megközelíthetővé és körbejárhatóvá tesz, emellett a bejáratok közvetlen kapcsolatot teremtenek a szomszédos játszótérrel, így a kert használata organikusan kapcsolódik a környező közterekhez.

Változatos zöldfelületek

A tervezés során kiemelt figyelmet fordítottunk arra, hogy a kertben egy gazdag, háromszintű zöldfelületi rendszer jöjjön létre. Az utca felőli részen dekoratív évelő- és cserjefelületek gazdagítják a látványt, míg az épület oldala mellett és mögött ligetes, facsoportos zöldfelületekkel biztosítjuk a természetes, kellemes hangulatot.

A belső kertek intim, nyugodt, privát tereként alakultak ki, ahol a látogatók zavartalanul pihenhetnek. A 3. és 4. emeleti tetőkertek teraszos elrendezése lehetővé teszi a változatos időtöltést, sőt, a 4. emeleten egy közösségi kert kialakítása is lehetséges, amely a lakók számára interaktív, összekapcsolt zöldfelületként működik. Az 5. emelet felületei félintenzív és extenzív növénykiültetéssel gazdagodnak, így a magasban is folyamatosan jelen van a zöld látvány és a természet közelsége.

Previous
Previous

LIGET BUDAPEST

Next
Next

DABASI JUBILEUMI PARK