ARENA MALL

Projekt
Arena Mall Belső Átalakítása – Mall – Food Court – Primark Zone
Tervtípus
Beltéri növénytelepítési terv
Év
2024
Területnagyság
10 000 m²
Megbízó
Nepi Rockcastle - Symmetry Arena Kft.
Generáltervező
BroadwayMalyan - Artonic Design Építészeti Kft.
Partner
Ganz HYDRO Kft.
© Korzó Tervezési Stúdió: Grabner Balázs – Terhes Dénes
 

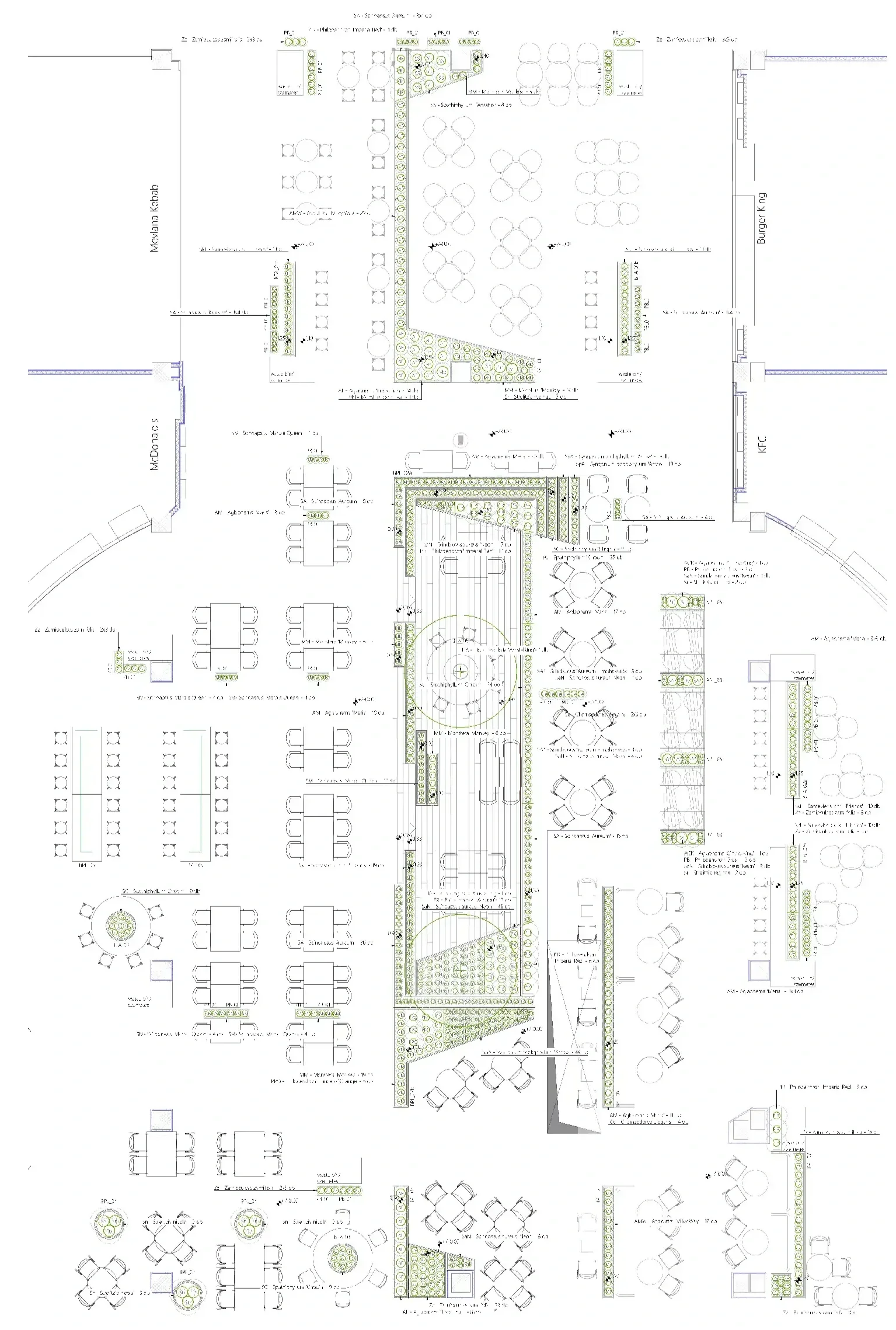
Food court

A food court központi elemét két nagyméretű fa alkotja, melyek a felülvilágító közepén elhelyezett, dobogós kiemelt étkezőhely fölé kerülnek. Az egyik fa süllyesztett, nagyméretű kazettába, a másik pedig kiemelt, hengeres növénydézsába kerül, így a tér hangsúlyos, vizuális fókusza jön létre.

A növényfajok kiválasztásánál elsődleges szempont a könnyű fenntarthatóság volt, ezért közel azonos igényű fajokat válogattunk össze. Az igényesebb, érzékenyebb növényeket kisebb foltokban, koncentráltan helyeztük el. A tér használhatóságát három beülős box fokozza, melyeket növényládák választanak el egymástól, és amelyek fölé a növények természetes módon kapaszkodhatnak, létrehozva egy zöld, intimebb mikroteret a közösségi étkezéshez.

Food court

A tűzvédelmi és fenntartási előírások figyelembevételével a mennyezetről biofílikus hatást keltő műnövények csüngenek, melyek téralakító és vizuális funkciót is betöltenek. Négyféle alkalmazás különböztethető meg: egyrészt a huzalokra és a födémperemhez rögzített kúszónövények, másrészt a függesztett elemekben – például lámpákban és növénytartókban – elhelyezett műnövények, továbbá a rácshálóról csüngő típusok, illetve a bárasztalok fölé telepített növénytartók növényei. Ezzel a megoldással egységes, természetközeli hangulatot teremtünk anélkül, hogy a biztonsági és fenntartási szempontok sérülnének.

Mall

Az Arena Mall folyosóin kialakított munkaállomások és pihenő zónák környezetében kereskedelmi forgalomban kapható növénytartókat helyeztünk el. A növénytartók funkciója a munkaállomásoknál a tér vizuális és funkcionális lehatárolása, míg a pihenő zónáknál a terület otthonosabb, barátságosabb hangulatának megteremtése. A növények kiválasztása a funkciókhoz igazodik: a lehatároló zónákban egynemű, átlátható kazetták biztosítják a strukturált térérzetet, míg a pihenőhelyeken vegyes, mozgalmas kiültetések hozzák létre a változatos, természetközeli hangulatot.

Primark Zone

A Primark üzlet előtti terület többfunkciós kialakítást kapott, magában foglalva fórumot, szórakoztató- és pihenőterületet, „városi parkot” és kávézót. A különböző funkciókat növénykazetták és növénydézsák választják el egymástól. A fórum a két kiemelt, lépcsős pódium között jön létre, melyek legfelső szintjén növénykazetták találhatók, a teljes magasságuk (növényekkel együtt) legfeljebb 120 cm.

Az egyik pódium egy pillér köré épül, melyet acélrács vesz körül a növények felfuttatására. A rácsra két növényfaj kerül: egy könnyen kapaszkodó Scindapsus és egy Monstera deliciosa, melynél a növekedés során az ágak folyamatos rögzítése szükséges.

Az egyedi háromszög alakú növénydézsák többségében 30–60 cm magas növényeket tartalmaznak. A „városi park” zónában, a födémperemen kívüli sáv mentén az alacsony növények mellett kisebb fák telepítését terveztük, így kialakítva változatos, természetközeli, vizuálisan is tagolt zöldfelületi élményt.

Previous
Previous

CLARK ÁDÁM TÉR

Next
Next

NYUGATI PÁLYAUDVAR